Bergmann
MPB 906
In het kort
Dankzij de 35 jaar geleden door BERGMANN uitgevonden pendelzuigertechnologie van de vuilperscontainers is een extreem hoge verdichting van vuil mogelijk in een waterdicht uitvoerbare perscontainer. Bijzonder kenmerk van de vuilperscontainers van BERGMANN zijn de hygiënische zelfreiniging, het eenvoudige legen en de continue belaadbaarheid. De vuilperscontainers zijn leverbaar voor afrolkippers, hebben een lage geluidsemissie tijdens bedrijf, zijn onderhoudsarm en qua techniek en constructie geperfectioneerd.
Productinformatie
Omschrijving
- Mobiele vuilperscontainer voor restvuil en nat vuil
- Elektro hydraulische aandrijving
- Modulaire opbouw voor flexibele gebruiksmogelijkheden
- Speciale constructies naar wens van de klant
Technische eigenschappen
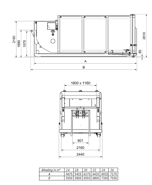
- Grote vulopening (ca. 1800 x 1300 mm)
- Enorm hoge verwerkingscapaciteit van 0,75 m³ per arbeidsslag
- Bolle zijkant van de container voor probleemloos legen
- Hoge perskracht, 390 kN bij MPB 906 ST 20
- Dubbele hydraulische pomp, daardoor persslag in slechts 16 seconden
- Robuust, tweetraps hydraulisch aandrijfaggregaat met onderhoudsvrij, centraal hydraulisch blok
- Perskamer en persplaat van extreem hoge staaldiktes
- Voorste en achterste opnamebeugel variabel in hoogte voor aanpassing aan alle gangbare afrolkippers
- Massieve pendelklep, 3-voudig aangeslagen, met verlengde, makkelijk hanteerbare palsluiting (ideaal bij bunkervulling)
- Haken aan de breekrand en de grote diepgang van de perszuiger voorkomen dat het persgoed terugkomt
- Makkelijk toegankelijk hydraulisch aggregaat boven de persruimte vergemakkelijkt de servicewerkzaamheden
- Grote stabiliteit bij economisch eigengewicht
- Machine TÜV-/ GS- en CE-getest
- Rambeveiliging van de bedieningselementen ter bescherming tegen schade
- Container is doorlopend gelast
- Omwenteling van het materiaal door ronding aan de losklep en daardoor hoge vulgewichten
- De bodem van de pers bestaat uit uiterst slijtvast kwaliteitsstaal
- Volledig geproduceerd in Duitsland door gekwalificeerde en ervaren medewerkers
Rendement
- BERGMANN-uitvinding en eigen ontwikkeling - HET origineel met 35 jaar aan ervaring
- Technisch en qua constructie geperfectioneerd op basis van jarenlange ervaring
- Ideaal voor de verdichting van nat vuil en restvuil
- Grote vulopening (ca. 1800 x 1300 mm)
- Kan continu met vuil worden beladen
- Verlaging van de afvalverwerkingskosten tot wel 75%
- Lange standtijd = hoge beschikbaarheid
- Extreem hoge verdichting, afhankelijk van het soort vuil, tot een fractie van het oorspronkelijke volume = hoge vulgewichten van gemiddeld 8 ton restvuil in de MPB 906 ST 20 en meer
- Beperking van het aantal ritten naar de afvalverwerking tot een minimum = drastische besparingen door lagere kosten voor afvalverwerking
- Comfortabele bediening door overzichtelijke drukknoppen
- Probleemloos legen door bolle zijkant van de container
- Corrosiearm doordat de hydraulische cilinders niet met vuil in aanraking komen
- Zelfreinigend en dus hygiënisch (reinigingswerkzaamheden onder en achter de perszuiger vervallen)
- Lage geluidsemissie tijdens bedrijf
- Eenvoudig om te bouwen en uit te rusten dankzij modulaire opbouw, daardoor eenvoudig aan te passen aan verschillende standplaatsen
- Lagere personeelskosten voor handling van afval
- Minimale benodigde ruimte en dus besparing van opslagkosten voor gangbare containers
- Al 35 jaar hoogste kwaliteitsstandaard
- Hoge, snelle en jarenlange beschikbaarheid van vervangingsonderdelen, 15 jaar gegarandeerd!
- Wereldwijd servicenetwerk
Standaarduitrusting
- Dubbele hydraulische pomp
- Steekbaar en neerklapbaar opnamesysteem aan de voorzijde, daardoor eenvoudige en snelle aanpassing van de opnamehoogte met bouten aan diverse typen afrollers
- Schroefbaar opnamesysteem aan de achterzijde, daardoor opnamehoogte van 1450 en 1570 mm mogelijk
- Voorbereid voor een geïntegreerde hef-kantelinrichting - geen laswerkzaamheden nodig bij aanpassing achteraf
- Autotimer
- Oliepeilbewaking
- Overbelastingsbeveiliging
- Bedrijfsurenteller
- Deksel boven de vulopening is probleemloos achteraf aan te brengen
- Hydraulisch gestuurde en daardoor robuuste omschakelklep
- Looprollen voor & achter
- TÜV/GS-getest
Toebehoren
- Melding bij ¾ vol en/of 100% vol
- Vulniveaumelding via GSM-module naar u of naar de afvalverwerker
- Geteste waterdichtheid door vulling met vloeistof
- Handmatig of hydraulisch bedienbaar deksel boven vulopening in diverse uitvoeringen (beschermt tegen vullen door vreemden en tegen het binnendringen van regenwater)
- Rubberafdichting van deksel en/of losklep vermindert stank en voorkomt binnendringen van regenwater
- Hydraulische hef-kantelinrichting voor arm- of kamleging (heft de vuilcontainer en kantelt de inhoud in de pers)
- Afstandsbediening via kabel
- Inschakellichtgordijn in de vulruimte (machine start zodra er iets in de vultrechter wordt geworpen)
- Blusaansluiting
- Voorziening voor ontwatering
Plaatsen van gebruik
Overal waar vuil met een hoog vochtgehalte ontstaat, zoals in:
- Supermarkten
- Bedrijfskeukens, hotels
- Warenhuizen
- Ziekenhuizen en verzorgingstehuizen
- Levensmiddelenindustrie
- Drukkerijen
Productspecificaties
Merk
Bergmann
Aandrijving
Elektro hydraulische aandrijving
Geproduceerd in
Duitsland
Certificaten
TÜV-/ GS- en CE
Productvarianten
Breedte
2425cm
Hoogte
2610cm
Gewicht
4420kg
Breedte
2425cm
Hoogte
2610cm
Gewicht
3500kg
Breedte
2425cm
Hoogte
2610cm
Gewicht
4230kg
Over Bergmann
Bergmann, als fabrikant met de meeste ervaring en houder van talrijke baanbrekende patenten, staat bekend om zijn zelf ontwikkelde, hoogwaardige producten die een leidende rol spelen in de concurrentiestrijd. Alle producten van Bergmann zijn volledig 'Made in Germany'. Het aanhoudende succes bewijst dat deze filosofie nog steeds wordt erkend als een kenmerk van kwaliteit.